PhotoStreet View
1227 San Pablo Avenue, Berkeley CA
Price
$800,000
Size
+/- 2,525 RSF
Highlights
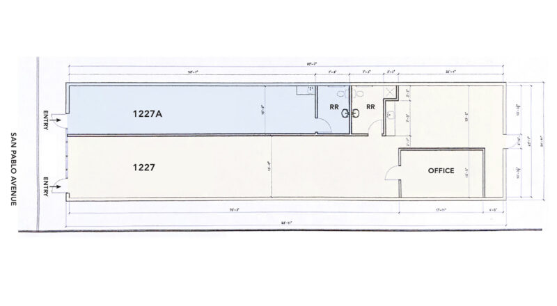
Single story building well suited for owner/user or as investment property. Currently divided into 2 storefronts – can be recombined. Building is presently vacant.
BUILDING SIZE: +/-2,350* SF (per public record)
*Buyer to verify measurements
PARCEL SIZE: +/-2,525 SF
APN: 60-2405-25-1
- 1227 is +/-1,700 RSF with an open floor plan in front, private office, kitchenette, restroom, back storage area, 3 skylights, and ±200 SF of mezzanine space
- 1227A is +/-650 RSF with an open floor plan, 2 skylights, and restroom
- High ceilings; up to 18’ in some areas
- Each unit separately metered for PG&E with 100 Amp, 3-phase power. One water meter serves the building
- Each unit has a separate gas-operated heater and a 20-gallon hot water heater
- Major renovation done in 2005 with new heater, lighting, insulation, and roof
- Over 25′ of street frontage on San Pablo Avenue
- 1/2 block from corner of San Pablo and Gilman
- Immediate neighbors include an auto body shop, Thai Restaurant Sistory, Phosho Dough, and the Tokyo Fish Market
- Close to national tenants Whole Foods Market, REI Coop, Philz Coffee, Chipotle, Office Depot, and more












