PhotoStreet View
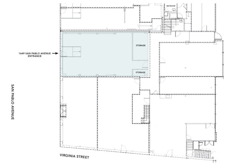
1649 San Pablo Avenue, Berkeley CA
Price
$2.75 psf/month NNN
Size
+/- 1,247 RSF
Highlights
Retail or office space on busy San Pablo Avenue (CA State Route 123). Close to numerous eateries, bars, retail shops, and fitness.
- Ground floor space with versatile open floor plan
- Nice display windows to the street
- High ceilings, track lighting, concrete floor
- Rear office/storage area, kitchenette
- Common area restrooms
- Tenant pays its own separately metered gas/electric
- Easy street parking
- Adjacent to Tinsel and Berkeley Balloons
- Neighborhood tenants include Whole Foods, REI, Chipotle, Office Depot, Road Runner Sports, Blick Art Materials, Walgreens, Emerald City Gowns, Homeroom, Philz Coffee, many small retailers, and more!
- Berkeley is the SF Bay Area’s academic, cultural and foodie haven









