PhotoStreet View
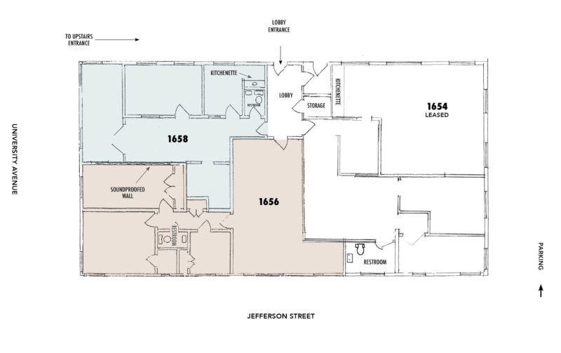
1656 University Avenue, Berkeley CA
Price
$2.50 psf/month Gross + Utilities
Size
+/- 1,254 RSF
Highlights
Centrally located office space for lease with parking available – in walkable business district. University Avenue is lined on both sides with independent merchants, shops, and cafés. Convenient location, short walk to Downtown and North Berkeley BART.
- Second floor office space at the corner of University and Jefferson
- Private offices, storage room, kitchenette/break room and restrooms
- Double-paned windows, HVAC, high-speed data access
- Enter by a flight of stairs into an inviting foyer that serves multiple tenants
- Parking available
- Easy freeway access
- 3 blocks to Trader Joe’s at the corner of University Avenue and MLK Jr. Way
- Enjoy close proximity to all Downtown and North Berkeley amenities
- University Avenue is a major corridor from I-80/I-580 in Berkeley to UC campus and Downtown Berkeley
- AC transit FS line has many stops along University Avenue in both directions
- 7 blocks from UC Berkeley
- Surrounded by many new mixed-use housing developments
- Quick walk to Downtown Berkeley’s restaurants (over 150!), world-class theatre, arts, live music and sports venues
















