PhotoStreet View
1674 University Avenue, Berkeley CA – For Lease
Price
$2.50 Gross + Utilities
Size
+/- 1,000 RSF
Highlights
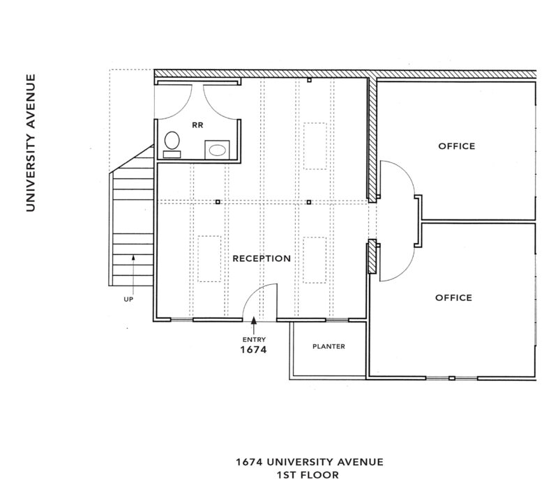
Commercial space available for lease in a storybook cottage set back from University Avenue. The Fox Commons complex is a green oasis of rustic, brick-sided cottages nestled in a tree-shaded garden.
- Ground floor of the rear (middle building) two-story cottage
- Accessible through an adjacent gate
- 2 private offices – one with vaulted wood ceiling, the other with open beam ceiling
- 1 restroom
- Situated in Central Berkeley on a major corridor for traffic, businesses, and residents – a gateway from I-80 to UC Berkeley campus
- Walk to either North Berkeley BART or Downtown BART stations
- Close to UC Berkeley, which is the number-one ranked public university in the world (U.S. News & World Report)
- 2 blocks to Trader Joe’s
- Many popular eateries are within 2 blocks
- Downtown Berkeley’s restaurants, world-class theatre, arts, live music and sports venues are all within walking distance
- Near North Shattuck’s destination culinary scene, all part of Berkeley’s vast dining options with over 350 restaurants citywide
- Step out front and catch an AC Transit bus with stops all along University Avenue, connecting to Downtown Berkeley and through adjacent cities
- Easy street parking
- Excellent freeway access











