PhotoStreet View
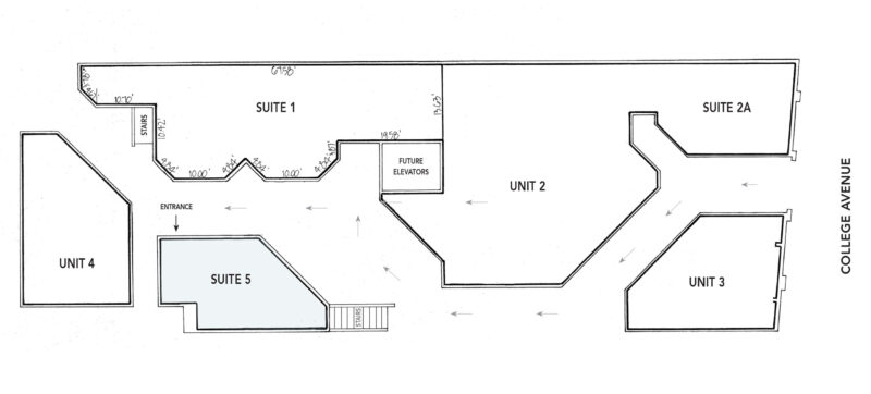
2980 College Avenue, Suite 5, Berkeley CA
Price
$2,000/month IG
Size
+/- 553 RSF
Highlights
Newly renovated office space in plug and play condition. Coveted Elmwood District – quiet office space in serene setting. Set back from College Avenue, amid a variety of eateries and retail shops.
- Recently renovated with new flooring, lighting, and restroom fixtures
- Open floor plan
- One private office/conference room
- High ceilings, large windows, LED lighting, wall heater, ceiling fans, restroom
- Water and garbage fees included in monthly rent
- Next to the Rialto Cinemas Elmwood movie theater, across from Rue Atelier and 100% Pure Cosmetics
- High income, upscale neighborhood
- Walker’s paradise – close to numerous cafés, restaurants, boutiques, independent merchants and services
- Join Cafenated, Bluemercury luxury beauty, Humphry Slocombe, Donatello & Co, Humbowl, Pretty Penny, Five Little Monkeys Toy Shop, Gordo Taqueria, Labels Luxury Consignment, and many fitness options
- Excellent transit access via several AC Transit bus lines, and convenient access to Ashby and Rockridge BART
Zoning










